Nowoczesne 2 pokoje | Balkon | Garaż | Winda |

lokalizacja: Warszawa, Drogomilska

830 000,00 PLN

19 975,93 PLN

Opis nieruchomości

Nowoczesne 2-pokojowe mieszkanie | Bemowo | Balkon | Garaż
Na sprzedaż nowoczesne, 2-pokojowe mieszkanie położone na 4. piętrze w budynku z windą na warszawskim Bemowie. Lokal jest w pełni wykończony i gotowy do zamieszkania, z możliwością zakupu z pełnym wyposażeniem - idealna propozycja zarówno do zamieszkania, jak i jako inwestycja pod wynajem.

Lokalizacja i komunikacja

Mieszkanie znajduje się w doskonale skomunikowanej części Bemowa, zapewniającej szybki i wygodny dojazd do centrum Warszawy oraz innych dzielnic.
 - Przystanek tramwajowy - ok. 350 m (5 minut pieszo)
 - Stacja metra Bemowo - ok. 1,2 km (ok. 15 minut pieszo / kilka minut komunikacją)
 - Liczne linie autobusowe w bezpośrednim sąsiedztwie
 - Szybki wyjazd na trasę S8 oraz autostradę A2
 - W pobliżu znajdują się sklepy, punkty usługowe, restauracje, placówki edukacyjne oraz tereny rekreacyjne, co zapewnia wysoki komfort codziennego życia.

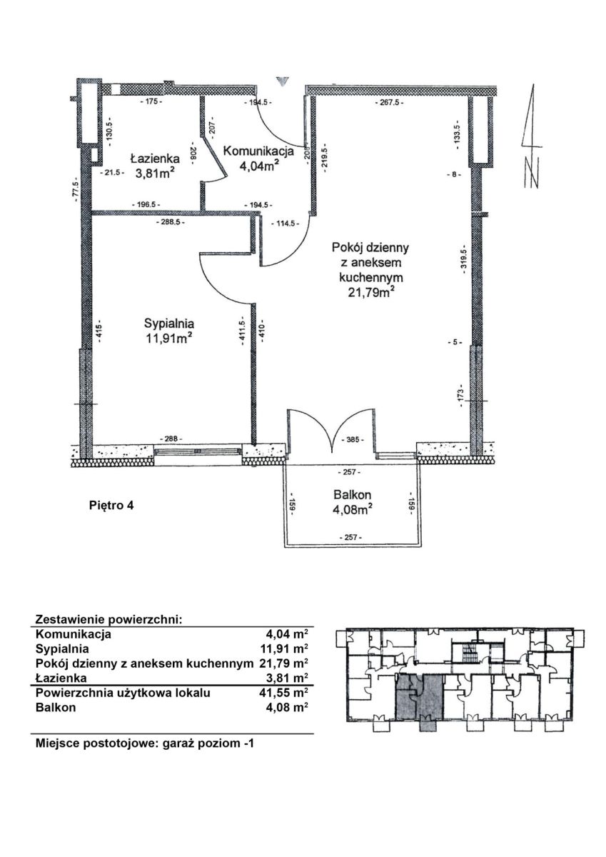
Układ mieszkania

 - Salon z aneksem kuchennym - 21,79 m²
 - Sypialnia - 11,91 m²
 - Łazienka - 3,81 m²
 - Przedpokój - 4,04 m²
 - Balkon - 4,08 m²

Dodatkowe atuty

 - Kameralny budynek z 2016 roku
 - Winda
 - Duży balkon
 - Budynek monitorowany
 - Szerokie miejsce postojowe w garażu podziemnym
 - Możliwość zakupu z pełnym wyposażeniem - idealne na start lub pod wynajem
 - Gotowe do zamieszkania od zaraz

Informacje dodatkowe

 - Stan prawny: pełna własność
 - Czynsz administracyjny: ok. 500 zł
 - Miejsce postojowe w garażu podziemnym: 50 000 zł (zakup obligatoryjny)

Dlaczego Randall Home?

Randall Home to zespół profesjonalistów z ogromną pasją do nieruchomości i pracy z ludźmi. 

Naszym priorytetem zawsze są potrzeby klienta. Dzięki doświadczeniu zdobytym na rynku i pełnym zaangażowaniu w każdy etap transakcji jesteśmy zespołem wyznaczającym nowe standardy na rynku obrotu nieruchomościami. Każdą transakcję przeprowadzamy od A do Z działając nieszablonowo i skutecznie.

Zespół Randall Home tworzą osoby z bogatym doświadczeniem w sprzedaży i kompleksowej obsługi klienta. Wizja naszego zespołu to coś więcej niż standardy oferowane na rynku.

Zakup nieruchomości to decyzja na lata, dla niektórych na całe życie. Wiąże się często z różnymi obawami oraz koniecznością zaangażowania mnóstwa prywatnego czasu.

Priorytetem dla nas jest oszczędność Twojego czasu, bezpieczeństwo transakcji, dopasowanie nieruchomości spełniającej Twoje kryteria oraz zapewnienie komfortu i satysfakcji. Znakomicie znamy rynek, posiadamy oferty, których nie ma w internecie i znajdujemy nieruchomości marzeń.

Posiadamy podobne mieszkania w tej i innych inwestycjach - skontaktuj się z nami
a z chęcią zaproponujemy Ci nieruchomości dopasowane do Ciebie!

Przedstawiona wyżej oferta nie jest ofertą handlową w rozumieniu przepisów prawa, lecz ma charakter informacyjny.

Plan Nieruchomości

Kontakt do opiekuna:

Randall Investments

Robert Banasiewicz
Nieprawidłowy adres E-mail
Mapa

Strona korzysta z plików cookie w celu realizacji usług zgodnie z Polityką prywatności. Możesz określić warunki przechowywania lub dostępu do cookie w Twojej przeglądarce.